シーアイヴィラ伊豆熱川MH834-1
シーアイヴィラ伊豆熱川 1LDK
MH834-1 シーアイヴィラ伊豆熱川 400万円 海望む 陽当り良好 ペット可
11階、海を望む南向きの1LDK、リビング床はフローリングになっています。伊豆熱川の高台から海を見下ろすリゾートマンション。広々した温泉大浴場やサウナ、レストラン、屋外プール他充実した共用施設!ペットと一緒にリゾートライフが楽しめます。
※ 画像をクリックすると拡大表示されます
●管理費等 32,871円/月(管理費:23,941円 修繕積立金8,930円 )
●その他費用 水道代 800円 組合費500円
◆施設
●サウナ付温泉大浴場 6時~10時 15時~24時 ※毎月第3水曜日休み(1月、8月、12月は休みなし) ●屋外プール ●テニスコート ●トレーニングルーム ●レストラン ●娯楽室
(物件概要)
◆マンション名:シーアイヴィラ伊豆熱川 このマンションの売物件一覧はこちら
◆所在地: 静岡県賀茂郡東伊豆町奈良本1265-11 地図はこちら
◆交通: 伊豆急行線「伊豆熱川」駅850m 徒歩約11分
◆建物構造: 鉄骨鉄筋コンクリート造陸屋根12階建
◆階数・向き:11階 南向き
◆築年月:平成1年5月
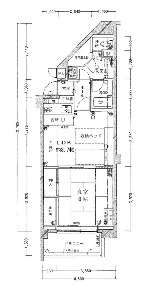
◆間取: 1ŁDK(LDK約8.7、和8)
◆専有面積 (壁芯): 49.09㎡(14.84坪)
◆バルコニー面積:5.63㎡
◆土地権利:所有権
◆用途地域:無指定
◆総戸数:321戸
◆管理会社:伊藤忠アーバンコミュニティ㈱
◆管理形態:全部委託 (常駐)
◆施工会社:東急工建/東急建設
◆現況: リゾート利用中
◆引渡日: 相談
◆駐車場: 無料(屋内24台 屋外102台)
◆設備: 東京電力・公共水道・集中浄化槽
◆その他:ペット可
◆取引様態: 媒介
※内容と現況が異なる場合は現況優先となります。
★ 内覧希望の方は事前にご予約をお願いいたします。
株式会社 伊豆あたみハウジング
お電話でのお問い合わせは 0120-930-852





















